When you're ready to start the renovation process, it is important to consider popular trends as well as the needs. First of all, you should consider how best to use the space you have. Think about what is needed most, and then determine if that pedestal bathtub or larger vanity is worth the investment. Next, find ways to add more bathroom storage. Adding more cabinets and shelves to such a small space can be tricky, but it is often crucial for storing towels and beauty supplies. Finally, think about the overall feel of the space. With a creative use of materials, even a bathroom can have decorative element.

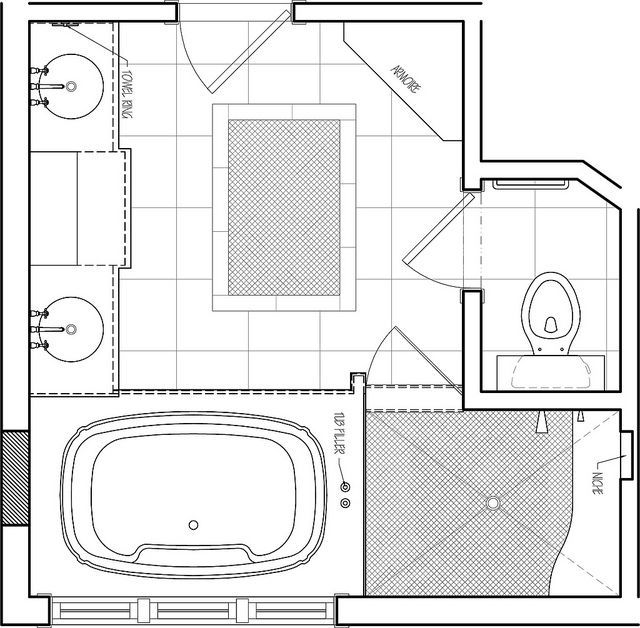
As you remodel, you want to think about the value, but you also want to think about what you like. Having a bathtub is good for your home, but it might not be a great use of space if your family doesn't have many baths. Instead, opt for more sink space with a larger vanity and double sinks. If several people use the same bathroom in the morning, try separating the toilet and shower area from the sink so multiple people can get ready simultaneously. Or if you like to have options, a bathtub and shower combination is the best of both worlds.
No comments:
Post a Comment